Skip til hoved indholdet Min side Min side

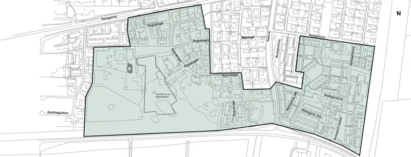
Kan jeg få fjernvarme?

Se om du kan få fjernvarme på kortet nedenfor.

Beregn din årlige varmeøkonomi med fjernvarme
Driftsstatus

Præstø Fjernvarme

Værkstedsvej 3

4720 Præstø

kontor@praestoe-fjernvarme.dk

CVR: 67247817

Telefon: Vagt tlf.: 55 99 16 60

Åbningstider

Telefontid mandag-torsdag fra kl. 9.00-13.00 og fredag 09.00-12.00.

Administration:
Telefonisk henvendelse tlf. 55 99 16 60
eller mail kontor@praestoe-fjernvarme.dk

Det er ikke muligt, at henvende sig personligt på værket i Præstø

Links